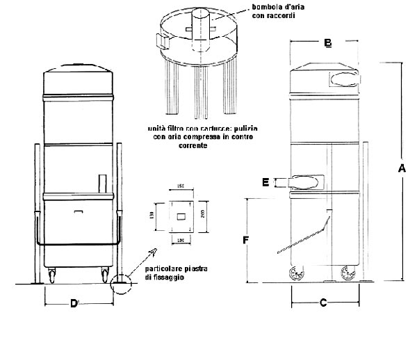
SPAC Separatore con filtro con pulizia in controcorrente

Separatore modello SPAC
Composto da :

  • filtro con pulizia in controcorrente con aria compressa
  • struttura in lamiera e profilati in acciaio
  • componenti assemblati con l'utilizzo di minuteria e viteria zincata con trattamento anticorrosione
  • verniciatura delle parti metalliche con polvere epossidica a forno.