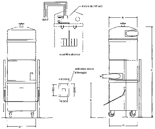
SEPSA Separatore con filtro a scuotimento automatico

Separatore modello SEPSA
Composto da :

  • filtro a scuotimento automatico
  • struttura in lamiera e profilati in acciaio
  • componenti assemblati con l'utilizzo di minuteria e viteria zincata con trattamento anticorrosione
  • verniciatura delle parti metalliche con polvere epossidica a forno
Si consiglia di azionare lo scuotifiltro rotazionale al termine di ogni ciclo di lavoro per una durata di 90'.
Per ottenere questo servizio si deve prevedere nel quadro elettrico un temporizzatore che dia il consenso al teleruttore dello scuotifiltro.