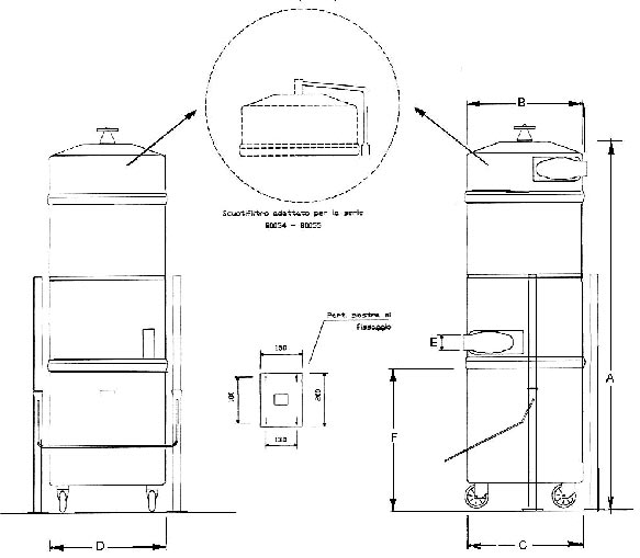
STELMAN Separatore con filtro a margherita

Separatore modello STELMAN
Composto da :

  • filtro a scuotimento automatico
  • struttura in lamiera e profilati in acciaio
  • componenti assemblati con l'utilizzo di minuteria e viteria zincata con trattamento anticorrosione
  • verniciatura delle parti metalliche con polvere epossidica a forno